Innováció
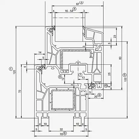
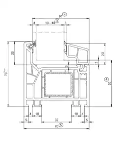
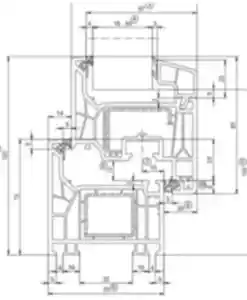
A Schüco FocusIng PVC-U rendszer számos előnnyel rendelkezik, és 76 mm-es mélységű szárnyal új és felújítási projektekben egyaránt használható.
Optimális teljesítmény, tiszta vonalak és csökkentett CO₂ anyagösszetétel, újrahasznosított anyagból készült belső maggal.
A Schüco FocusInggel az épület-specialista Schüco olyan PVC-U rendszerrel bővíti portfólióját, amely megfelelő alapmélységgel, ugyanakkor kiváló szerkezeti értékekkel rendelkezik. Úgy tervezték, hogy a lehető legtöbb újrahasznosított anyagot tartalmazzon. A profilok akár 50 százalékban újrahasznosított tartalommal is rendelkezhetnek.
Az optimális munkafolyamatok biztosítása érdekében a fejlesztés során a Schüco LivIng és Schüco CT 70 rendszerekkel való magas fokú kompatibilitást is biztosítottuk.













